Sie sind hier: Start  >  Mieten > Wohnung

Immobiliendetail

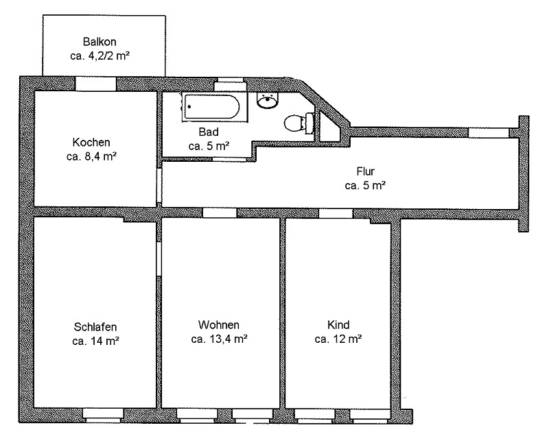
Helle 3-Raum-Wohnung mit Balkon

Herderstraße 01
04435 Schkeuditz
Schkeuditz - Altbaugebiet
Objektdetails
Nettokaltmiete
561,00 €
Nebenkosten
80,00 €
Heizkosten
198,00 €
Warmmiete
839,00 €
Kaution
1683,00 €
Wohnfläche
66,00 m²
Bad
Wanne, mit Fenster
Obergeschoss
2
Objektnummer
14501.1.7
verfügbar
sofort
Energieausweis
Typ
Verbrauchsausweis
Energiekennwert
122,00 kWh/(m²*a)
Energieklasse
D
Baujahr
1925
Energieträger
Gas
Heizungsart
Zentralheizung
inkl. Warmwasser
ja
Lagebeschreibung
Das Schkeuditzer Altbaugebiet liegt östlich vom Zentrum. Es besticht durch die schön angelegten und viel Grün umgebenen Wohnanlagen. Sie errreichen in kürzester Zeit das Rathauscarré sowie das Ärtztehaus in der Lessingstraße. Weiterhin sind die S-Bahn und die Straßenbahn nur wenige Gehminuten entfernt.
Ansprechpartner
Frau Susan Glänzel
Telefon: 034204 752-13